关于优士良

ABOUT YOSENN

苏州优士良电子科技有限公司于2011年7月在苏州吴江成立,是一家专业从事自动化设备研发、生产、销售、服务及进出口业务于一体的国家高新技术企业,旨在为客户提供高效高精的工厂智能化解决方案。公司拥有经验丰富的售前及项目管理团队,软件/硬件/结构...

  • 供应链资源

    全球顶尖的供应商资源整合

  • 智能工厂规划

    智能制造工厂设计咨询与规划

  • 技术开发

    顶尖的研发团队,并与世界500强企业技术合作

  • 品质卓越

    精密量仪,依ISO9001标准管控品质

  • 及时交付

    严格的项目管理 体系确保及时高品质交付

  • 7*24H技术支持

    覆盖全面的服务网络,7*24H技术支持

全球布局

GLOBAL LAYOUT

总公司:

办事处:

中国苏州

中国合肥 中国杭州 中国东莞

越南 泰国

新能源电池包

PACK

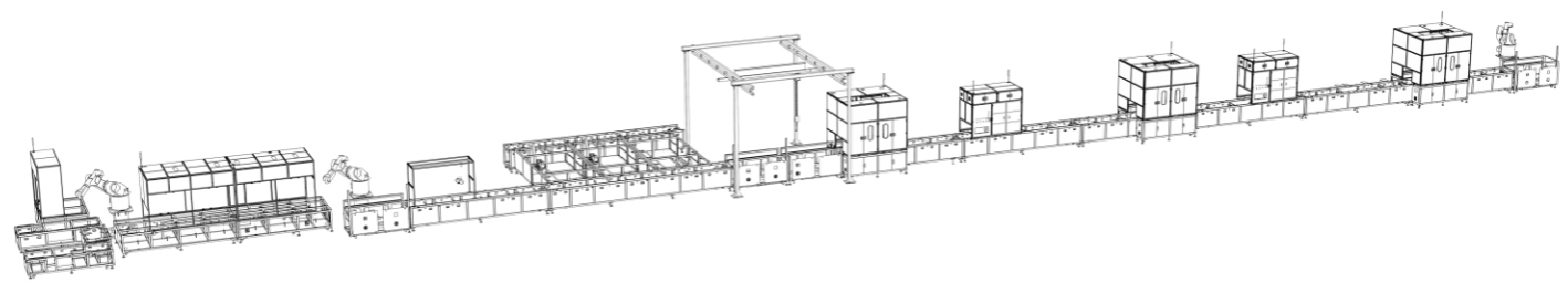
变频器控制器KB组装线由料车上料,机械手抓取KB组装,自动锁螺丝贴标,分流到测试区测试,测试过程中有按压键及旋转按钮动作进行相关测试,全自动作业,最大程度实现生产数据的监控与混线生产。

了解详情 >>